Sitting on one of the best-positioned lots in the estate surrounded by the parks and walking tracks, this beautiful family home offers a modern yet low-maintenance lifestyle and features the following.
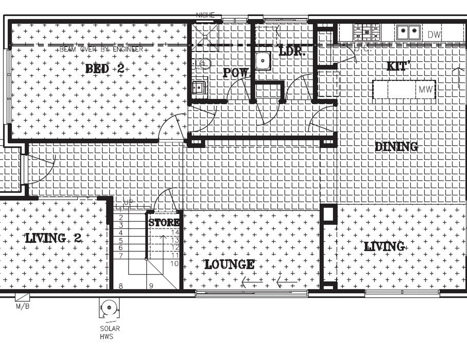
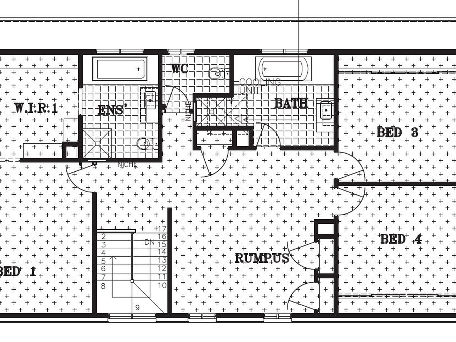
- 4 generous size bedrooms, master with WIR and ensuite with stunning views from its balcony
- 3 bathrooms and 1 powder room
- Plenty of living space with a study area, family room downstairs, and lounge upstairs overlooking the park
- Spacious open-plan dining and living area
- Modern kitchen featuring stainless steel appliances and dishwasher
- Ducted heating and cooling throughout
- Separate laundry room
- Double remote garage with internal access
Featherbrook is a thriving estate where families live and grow together. Residents have access to plenty of space and the essentials of family life, from schools to shops, childcare, medical services, and parkland. Just minutes away, Featherbrook Village gives locals access to a wide range of specialty stores - including Woolworths supermarket, medical center, and pharmacy.
The diamond freeway interchange provides residents with direct access to the Princes Highway, making trips to the CBD and airport so easy. If you prefer using public transport, both Williams Landing and Hoppers Crossing train stations are nearby.
Please register now to inspect. Thank you.
- Ducted Heating
- Ducted Cooling
- Evaporative Cooling
- Balcony
- Outdoor Entertainment Area
- Remote Garage
- Alarm System
- Built-in Wardrobes
- Dishwasher
- Study






































