Aurora Melbourne Central offers a rare opportunity to live in Melbourne's best connected development and urban living with stunning views across the city. Here, everything you require is within walking distance and the free tram zone has added the complete convenience to reach any part of Melbourne CBD.
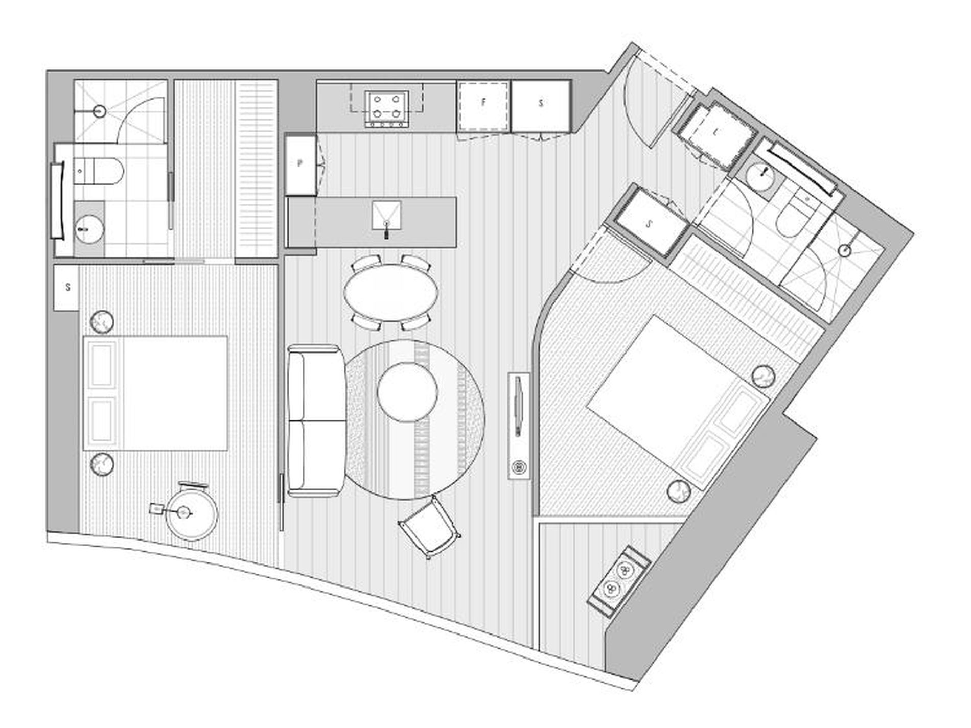
This bright and good sized 2-bed apartment features:
- Great city view with abundant natural lights into every room
- Generous floor-to-ceiling windows
- Open plan living/dining area
- Sophisticated kitchen featuring stone bench-top, elegant joinery, and European kitchen appliances
- Well-designed bathroom vanity & cabinet
- Air-conditioning in living room and master bedroom
Within the building, residents enjoy an extensive range of amenities including 25m indoor lap pool, sauna, steam room, sundeck, plunge pool + jacuzzi, gymnasium, yoga zone, private dining + lounge spaces, BBQ deck with outdoor seating, karaoke room, and private cineplex.
Inspection is a must. Register now or call Chris on 0432 011 282.
- Air Conditioning
- Split-System Air Conditioning
- Reverse Cycle Air Conditioning
- Deck
- Outdoor Entertainment Area
- Swimming Pool - Above Ground
- Built-in Wardrobes
- Gym
- Intercom
- Dishwasher
- Floorboards
- Inside Spa






























